Omakotitalo, 64,0 m2
k+mh+oh+wc+pukuh.+sauna+varasto+kellari+tekn.tila
62 000,00 €
map Kannistonojantie 14, 16960 Iso-Evo
my_location Katso sijainti kartalla
Sovi esittely, kohdetta välittää:
- Henri Vilén
- Kiinteistövälittäjä, toimitusjohtaja
- mail_outlineLähetä sähköpostia
- smartphoneSoita 0405307584
Sovi esittely, kohdetta välittää:
- Henri Vilén
- Kiinteistövälittäjä, toimitusjohtaja
- mail_outlineLähetä sähköpostia
- smartphoneSoita 0405307584
Kannistonojantie 14, Iso-Evo, Iso-Evo
Iso-Evolla sijaitseva omakotitalo, joka tarjoaa mainion mahdollisuuden nauttia maalaiselämästä lähellä luontoa. Talo sopii niin asumiseen, kuin vapaa-ajan paikaksi. Talon pihapiiri avautuu vehreälle nurmialueelle, joka rajautuu kauniisti metsään ja peltoon.
Kiinteistön tontti on suojaisa ja tontilla on runsaasti marjapensaita ja kasvillisuutta.
Kiinteistön sijainti on erinomainen luonnon ystäville, sillä Evon retkeilyalue on vain noin 7 kilometrin päässä. Lammin keskustasta löytyvä palvelut sijaitsevat noin 15 kilometrin päässä.
Vuonna 1966 valmistunut talo on rakennettu puusta ja siinä on peltikatto. Asuinpinta-alaa on 64 neliömetriä, ja talo seisoo omalla 3040 neliömetrin tontilla. Talon lämmitysjärjestelmä koostuu puu- ja sähkölämmityksestä.
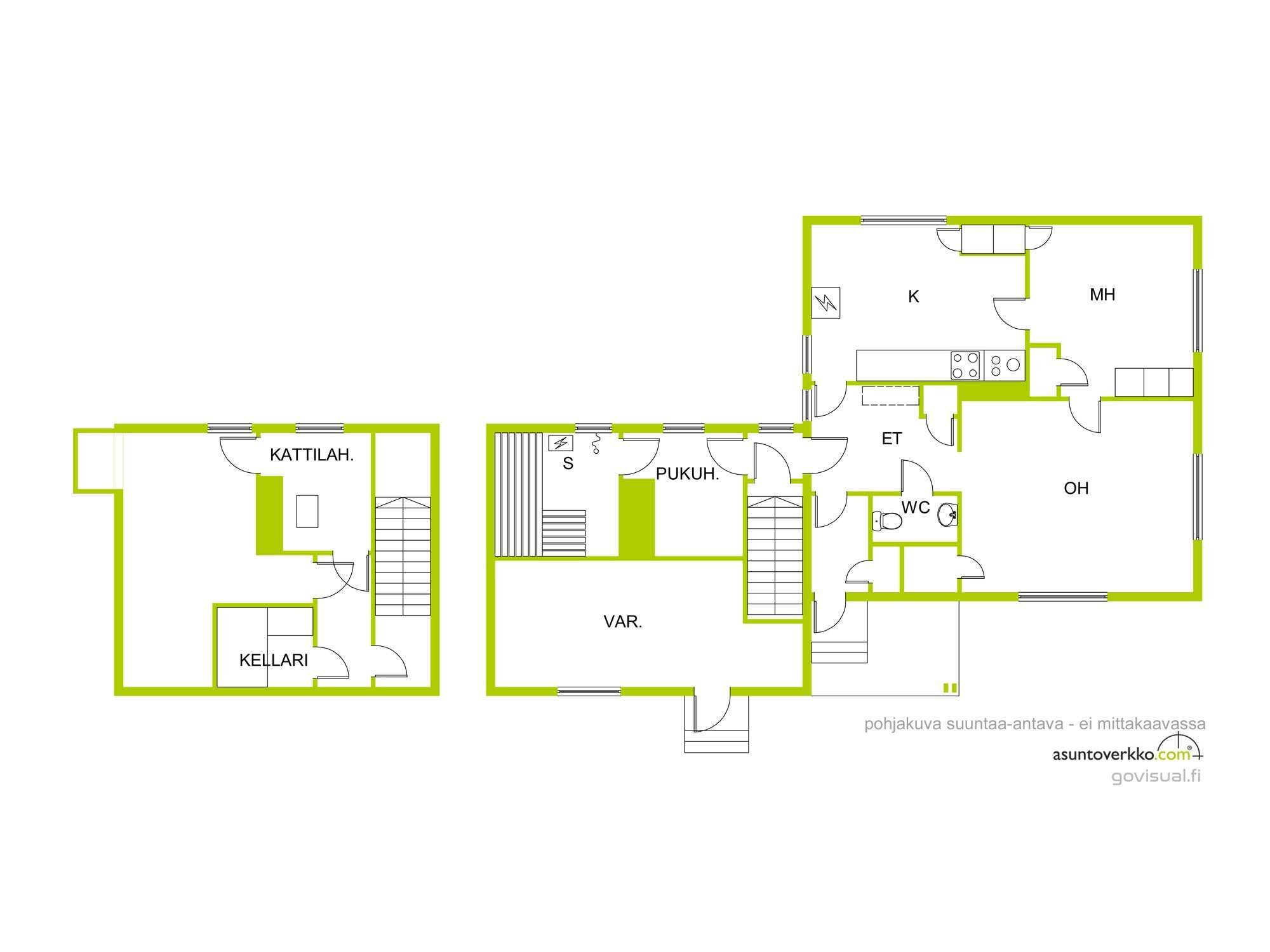
Talossa on tilavat keittiö, makuuhuone ja olohuone. Saunaan on kulku pukuhuoneen kautta ja talon pesuhuone sijaitsee saunassa. Saunassa on erilliset sähkö ja puukiukaat.
Tämä talo tarjoaa mahdollisuuden toteuttaa omia unelmia ja remontoida mieleisekseen. Tartu tilaisuuteen ja tee tästä talosta oma kotisi tai vapaa-ajan paikkasi keskeltä kaunista Kanta-Hämeen luontoa.
Kiinteistön tontti on suojaisa ja tontilla on runsaasti marjapensaita ja kasvillisuutta.
Kiinteistön sijainti on erinomainen luonnon ystäville, sillä Evon retkeilyalue on vain noin 7 kilometrin päässä. Lammin keskustasta löytyvä palvelut sijaitsevat noin 15 kilometrin päässä.
Vuonna 1966 valmistunut talo on rakennettu puusta ja siinä on peltikatto. Asuinpinta-alaa on 64 neliömetriä, ja talo seisoo omalla 3040 neliömetrin tontilla. Talon lämmitysjärjestelmä koostuu puu- ja sähkölämmityksestä.
Talossa on tilavat keittiö, makuuhuone ja olohuone. Saunaan on kulku pukuhuoneen kautta ja talon pesuhuone sijaitsee saunassa. Saunassa on erilliset sähkö ja puukiukaat.
Tämä talo tarjoaa mahdollisuuden toteuttaa omia unelmia ja remontoida mieleisekseen. Tartu tilaisuuteen ja tee tästä talosta oma kotisi tai vapaa-ajan paikkasi keskeltä kaunista Kanta-Hämeen luontoa.
Perustiedot
| Kohdenumero | 80442691 |
| Sijainti | Iso-Evo, Iso-Evo Kannistonojantie 14 |
| Tyyppi | Omakotitalo |
| Huoneistoselitelmä | K+mh+oh+wc+pukuh.+sauna+varasto+kellari+tekn.tila |
| Huoneiden lukumäärä | 2 |
| Makuuhuoneiden lukumäärä | 1 |
| Takka | Ei takkaa. |
| Asuinpinta-ala | 64,0 m2 |
| Muut tilat | 55 m² |
| Kokonaispinta-ala | 119,0 m2 |
| Kerros | 1 / 1 |
| Rakennusvuosi | 1966 |
Hinta ja kustannukset
| Velaton hinta | 62 000,00 € |
| Myyntihinta | 62 000,00 € |
| Kiinteistövero | 180,54 € / vuosi |
| Lämmitys | 200 € / kk |
| Sähkölämmitys | 200 € / kk |
| Lisätietoja maksuista | Lämmityskustannukset sisältävät sähkön + sähkönsiirron. Yhteinen jätehuolto naapurin kanssa noin 20 €/vuosi. |
Tilat ja materiaalit
| Tilojen kuvaus | Erillishuone on rakennettu alkuperäisesti suunnitellun autotallin paikalle. Tila on toiminut aikanaan huoneena ja nykyisin varastona. Tilaan kulku ulkokautta. Pukuhuoneessa on betonilattia, paneeliseinät, pesukoneliitäntä ja pakastin. Rakennuksen alakerrassa on kellari ja tekninen tila ja liiteri. Eteisessä on ilmalämpöpumppu, joka on rikki. |
| Keittiön varusteet | Astianpesukone (Pöytämallinen (rikki)), liesi ja liesituuletin |
| Keittiön varustus | Liesi/uuni: Keraaminen liesi |
| Keittiön materiaalit | Lattia: Muovimatto Seinät: Puu ja tapetti |
| Olohuoneen materiaalit | Lattia: Muovimatto Seinät: Tapetti |
| Makuuhuoneen materiaalit | Lattia: Muovimatto Seinät: Tapetti |
| Kylpyhuone | Pesuhuone saunan yhteydessä. |
| Saunan kuvaus | Talon pesuhuone on saunan yhteydessä ja saunassa on suihku. Saunassa myös vesipata. |
| Saunan kiuas | Puukiuas ja sähkökiuas |
Lisätiedot
| Yleiskunto | Tyydyttävä |
| Lämmitysjärjestelmä | Puu ja sähkö |
| Kiinteistötunnus | 109-516-1-56 |
| Tontin omistus | Oma |
| Tontin pinta-ala | 3 040,0 m2 |
| Rakennusmateriaali | Puu |
| Katto | Tyyppi: Harjakatto Kate: Pelti |
| Viemäri | Vuonna 2011 uusittu umpisäiliö. |
| Energiatodistus | Ei lain edellyttämää energiatodistusta |
| Kaavoitus | Ei kaavoitettu |
| Viat ja vahingot | Vesivahinko: kyllä Kosteusvahinko: ei Home-/mikrobi- tai muita sisäilmaongelmia: ei Muita erityisiä ongelmia: ei |
Palvelut ja liikenneyhteydet
| Palvelut | Lammin keskustan palvelut noin 15 km. |
| Koulut | Ala-aste 16,5 km. Ylä-aste ja lukio noin 15 km. |
| Päiväkodit | Kunnallinen päiväkoti noin 16,5 km. Yksityinen päiväkoti 15,5 km. |
infoTäydelliset kohdetiedot saat tilaamalla myyntiesitteen, ota yhteyttä välittäjään.
Sovi esittely, kohdetta välittää:
- Henri Vilén
- Kiinteistövälittäjä, toimitusjohtaja
- mail_outlineLähetä sähköpostia
- smartphoneSoita 0405307584
- Omakotitalo, 64 m2
- k+mh+oh+wc+pukuh.+sauna+varasto+kellari+tekn.tila
- map Kannistonojantie 14, 16960 Iso-Evo
- my_location Katso sijainti kartalla